west yorkshire - glass home lift

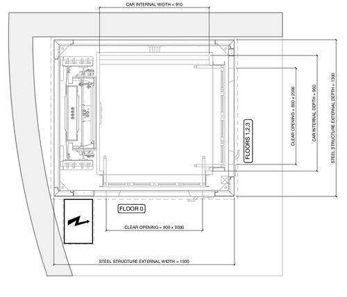
4
STOPS
STOPS
5690 MM
TRAVEL
TRAVEL
0.15 M/S
SPEED
SPEED
230 KG
RATED LOAD
RATED LOAD





















If you would like to request a quotation or find out more about Premier Lift Group, contact our team on
020 3355 0523 or info@premierliftgroup.co.uk